
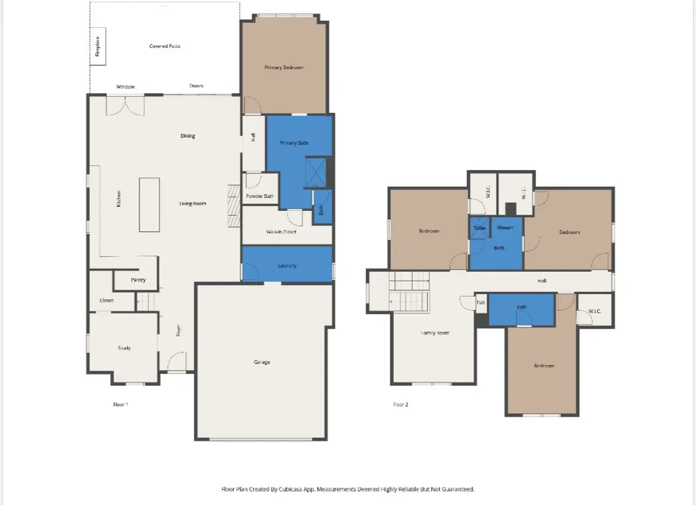
Welcome to Grapevine! This home is nestled in a prime location & a larger lot in the new luxury, yet quaint neighborhood, Dove Station. Completed in January 2026, this new construction home is ready for its first owners! All the charm of Grapevine combined with Carroll ISD schools. This traditional style house has all the makings of a luxurious next chapter for you along with the warmth & charm of home. From the curb you will be greeted with beautiful landscaping and gas lanterns. Walking in the front door you will fall in love with the oak hardwood floors throughout the living areas and bedrooms. The kitchen has a large island and is open to the living and dining areas, perfect for entertaining. High end appliances in the kitchen including a Thor gas range & oven, Bosch dishwasher & refrigerator, Z-line built in microwave along with custom cabinetry with soft close features. With 4 bedrooms, 4 bathrooms and a study, the possibilities are endless. The living room boasts of a gas fireplace and tall ceilings. You’ll find custom designer finishes throughout the home~thank you to Interior Styling, LLC! Walking out the backdoor you’ll find a covered patio with a fireplace where you can have your morning coffee or relax to round out the end of a long day. Built in surround sound speakers in the living room, primary bedroom and patio. Ring doorbell, prewired for a security system, tankless hot water heater, insulated with spray foam encapsulation & class 4 roof. So many features to love! Close proximity to Grapevine lake, historic downtown Main Street in Grapevine, upscale Southlake shopping & restaurants, DFW airport and interstates. Don’t miss this fantastic opportunity to call Grapevine home!
© 2023 North Texas Real Estate Information Systems, Inc. All rights reserved. Disclaimer: All information deemed reliable but not guaranteed and should be independently verified. All properties are subject to prior sale, change or withdrawal. Neither listing broker(s) nor Anchor Home Team shall be responsible for any typographical errors, misinformation, or misprints and shall be held totally harmless. The database information herein is provided from and copyrighted by the North Texas Real Estate Information Systems, Inc. NTREIS data may not be reproduced or redistributed and is only for people viewing this site. All information provided is deemed reliable but is not guaranteed and should be independently verified. The advertisements herein are merely indications to bid and are not offers to sell which may be accepted. All properties are subject to prior sale or withdrawal. All rights are reserved by copyright
Last Updated: . Source: NTREIS
Provided By
Listing Agent: Aubrey Wright (#0719335), Phone: (817) 523-9113
Listing Office: League Real Estate (#WTMC00FW)

Get an estimate on monthly payments on this property.
Note: The results shown are estimates only and do not include all factors. Speak with a licensed agent or loan provider for exact details. This tool is sourced from CloseHack.